概 要

施設運営主体

名   称
 社会福祉法人イケソー福祉会

所 在 地
 札幌市東区北27条東6丁目1-18

電 話 番 号


 011-751-8593

代表者氏名
 理事長 池田 和子

利用施設

施設の種類
 認可保育園

施設の名称
 かりき保育園


施設の所在地

 札幌市東区東雁来13条2丁目9-12
連 絡 先


 電話番号:011-791-1115
 ファックス:011-791-1222

管 理 者
 園 長  上野 修


利用定員

 (1) 利用定員

 ・子どもの区分(定員)
 ・2号認定子ども(55人)
 ・3号認定子ども 満1歳以上(26人)
 ・3号認定子ども 満1歳未満(9人)

 (2) 地域の保育の需要等の状況から利用定員を超えて
 子どもを受入れる場合があります。


認可年月日

 平成18年 6月 1日

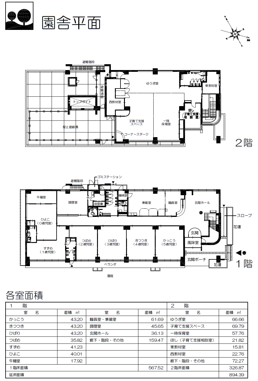
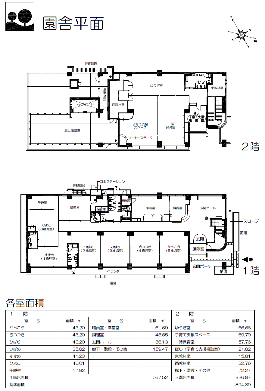
園舎平面

クラス

0歳児
 ひよこ組
1歳児  すずめ組
2歳児  つばめ組
3歳児  ひばり組
4歳児  きつつき組
5歳児  かっこう組

※クラスと担任は決まっていますが、日常的に混じり合って生活しています。